Licitace 1+3 - Jateční 1153

Adresa a číslo bytu:Jateční 1153, Nový Bohumín, byt č. 33
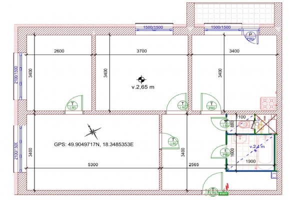
Velikost a kategorie:1+3, I. kategorie, 7. nadzemní podlaží
Popis:Cihlový dům v klidné části města v blízkosti školy, školky a supermarketu. Byt se zděným bytovým jádrem je po celkové rekonstrukci.
Plocha pro výpočet nájemného:67,81 m2
Celková plocha bytu: 70,33 m2
Prohlídka bytu dne: 29.10.2025 od 14:45 do 15:00
30.10.2025 od 10:00 do 10:15
Přijďte si byt před licitací prohlédnout
Licitace se koná dne: 03.11.2025 v 16:30
v budově MěÚ v Bohumíně číslo dveří A135 (zasedací místnost v přízemí hlavní budovy)
Vyvolávací cena: 80,00 Kč / m2 / měsíc

Jateční 1153 - zvětšit fotografii
Jateční 1153 - zvětšit fotografii
Jateční 1153 - zvětšit fotografii


Bližší informace

  • bližší informace k licitaci získáte přímo na bytovém oddělení, nebo na telefonních číslech 596 092 213 (Pavlína Kameníková), 596 092 199 (Lenka Vachtarčíková)
  • bližší informace k prohlídce a stavu výše uvedeného bytu získáte u bytového technika (Martin Hanzlík) nebo na telefonním čísle 596 092 216

Prvního kola licitačního řízení se mohou zúčastnit občané Evropské unie a dlouhodobě pobývající rezidenti na území Evropské unie starší 18 let, kteří

  • mají prokazatelný1 pobyt na území města, a to nepřetržitě po dobu posledního jednoho roku
     
    nebo
     
  • mají zaměstnání či jsou osobami samostatně výdělečně činnými na území ČR nejméně jeden rok.

1 Prokazatelný pobyt lze doložit např. předložením evidenčního listu k bytu, nájemní smlouvou, prohlášením majitele nemovitosti nebo vlastnictvím nemovitosti a placením místního poplatku za komunální odpad.

Pro účely posouzení zaměstnání se nepřihlíží k časově omezeným pracovním možnostem, na které zaměstnavatelům přispívá Úřad práce příspěvkem na zaměstnanost.

Zájemci mohou mít sjednanou nájemní smlouvu k městskému bytu a po vylicitování stávající byt odevzdají městu Bohumín.

 

Při rozhodování o uzavření nájemní smlouvy k bytu ve vlastnictví města bude kromě nejvyšší nabídnuté částky za 1m2/měsíčně zejména přihlédnuto k následujícím skutečnostem:

  • má-li či nemá zájemce adresu trvalého pobytu na území ČR shodnou s adresou ohlašovny MěÚ
  • je-li či není zájemce dlužníkem vůči městu Bohumín, popř. v jaké výši a z jakého důvodu
  • bydlí-li či nebydlí zájemce na základě ubytovací smlouvy na ubytovně
  • je-li či není zájemce zapsán v insolvenčním rejstříku
  • pobírá-li či nepobírá zájemce komponenty superdávky, dříve zařazené mezi opakující se dávky hmotné nouze, a to nepřetržitě po dobu šesti měsíců předcházející datu licitačního řízení. Bude hodnoceno dle rozhodnutí  Úřadu práce a netýká se občanů, kteří pobírají dávky sociální péče na zvláštní pomůcky pro těžce zdravotně postižené či dávky státní sociální podpory vyplácené úřadem práce nebo dávky nemocenského pojištění
  • byl-li či nebyl zájemci v minulosti vypovězen nájem městského bytu v Bohumíně na základě důvodů uvedených v § 2291, odst. 2 zákona č. 89/2012 Sb. ObčZ, v platném znění, či byla-li zájemci v minulosti neprodloužena nájemní smlouva z důvodu porušení povinností nájemce
  • bude-li či nebude zájemce schopen pravidelně hradit nájemné a služby spojené s užíváním bytu, při prokazatelně oprávněných pochybnostech o možnosti hradit pravidelné měsíční úhrady plateb jsou zájemci před podepsáním nájemní smlouvy povinni tuto skutečnost na výzvu odboru správy domů doložit.

Výše uvedené skutečnosti osvědčí zájemci svým podpisem na licitačním formuláři, součástí kterého je i čestné prohlášení, který vyplní při účasti u licitačního řízení.

Uvedení nepravdivých údajů v čestném prohlášení bude mít za následek vyloučení ze stávající licitace.

Zájemce s nejvyšší nabídnutou částkou za 1 m2/měsíčně musí před podpisem nájemní smlouvy složit jistotu ve výši trojnásobku čistého nájemného se zaokrouhlením na 100 Kč dolů, maximálně však:

    • 13 000 Kč u malých bytů o velikosti 0+1, 1+1 nebo 0+2
    • 18 000 Kč u velkých bytů o velikosti 1+2, 0+3, 1+3, 1+4 nebo 1+5

    Jistota bude vypočtena u licitačního řízení. Pro výpočet jistoty se nazapočítává plocha sklepních prostor.

     

    Průběh licitace

    Licitace probíhá tak, že v úvodu členové bytové komise zkontrolují platnost dokladů totožnosti u uchazečů o licitaci, popřípadě ověřenou plnou moc. Poté každý zájemce obdrží lístek opatřený úředním razítkem. Zájemce napíše na lístek čitelně výši částky za 1 m2/měsíčně, kterou je ochoten zaplatit za nájem v Kč/m2/měsíčně. Tato částka nesmí být nižší než vyvolávací cena. V čestném prohlášení, které je součástí formuláře, zakroužkuje pravdivé údaje, licitační formulář podepíše a odevzdá komisi, která ověří správnost vyplněných údajů, zda souhlasí s dokladem totožnosti či plnou mocí. Po shromáždění všech nabídek komise zjistí pořadí nabízených částek za 1 m2/měsíčně a jména příslušných zájemců. V případě shodnosti nabídnutých částek se stávající licitace opakuje. Po skončení licitace následně zaměstnanec odboru správy domů pořídí protokol s podpisy členů komise. Zájemce s nejvyšší nabídnutou částkou za 1 m2/měsíčně získává právo uzavřít nájemní smlouvu. Další v pořadí se stávají náhradníky pro případ, že by vybraný zájemce neuzavřel do 15 dnů nájemní smlouvu anebo nezaplatil jistotu, která je splatná ke dni podpisu smlouvy. Tato 15denní lhůta neplatí pro ty, kteří budou vyzváni k doložení podkladů pro projednání v bytové komisi. Každý zájemce může vylicitovat pouze jeden byt. Netýká se stávajících nájemců, kteří mají platnou nájemní smlouvu. V případě neúspěchu licitace bude následovat druhé (případně další) kolo licitace. Této opakované licitace se mohou zúčastnit i občané Evropské unie a dlouhodobě pobývající rezidenti na území Evropské unie starší 18 let s trvalým a prokazatelným pobytem na celém území ČR. Zájemci se k licitaci dostaví s platným dokladem totožnosti nebo úředně ověřenou plnou mocí!

    Moravskoslezský kraj
    Těšínské Slezsko
    Místní akční skupina bohumínsko

    Úřední hodiny

    Úřední hodiny pro veřejnost

    Po: 7:30 - 12:00 a 13:00 - 17:00
    St: 7:30 - 12:00 a 13:00 - 17:00

    Podatelna a informační centrum

    Po: 7:00 - 17:00
    Út: 7:00 - 14:00
    St: 7:00 - 17:00
    Čt: 7:00 - 14:00
    Pá: 7:00 - 13:00

    Hlavní pokladna

    Po: 7:30 - 12:00 a 13:00 - 17:00
    Út: 8:00 - 11:30
    St: 7:30 - 12:00 a 13:00 - 17:00
    Čt: 8:00 - 11:30
    Pá: 8:00 - 11:30

    Budova A, číslo dveří A221 (2. NP)

    Pokladna - odbor správy domů

    Po: 7:30 - 12:00 a 13:00 - 17:00
    Út: 8:00 - 11:00
    St: 7:30 - 12:00 a 13:00 - 17:00
    Čt: 8:00 - 11:00
    Pá: 8:00 - 11:00

    Budova B, číslo dveří B204 (2. NP)

    6 °C